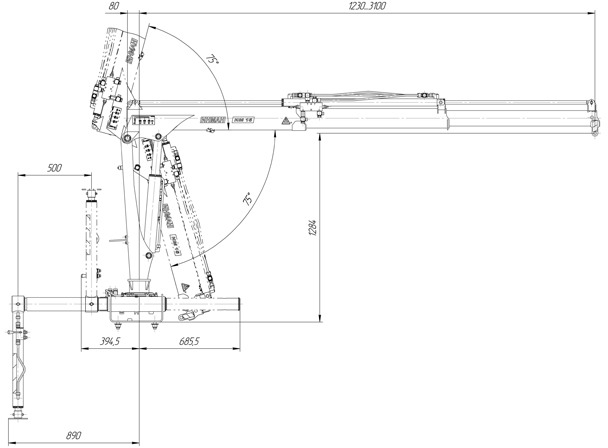
Гидравлический кран-манипулятор ИМ 15
Опубликовано: 1д.
Страна-изготовитель: Россия
Тип привода: гидравлический
Груз-сть на min вылете, кг: 990
Максимальный грузовой момент, тм: 1.4
Максимальный вылет стрелы, м: 3.1
Грузоподъемность на максимальном вылете, кг: 430
Максимальная глубина опускания, м: 1.0
Гидравлический кран-манипулятор ИМ 15
Гидравлический кран-манипулятор ИМ 15 представляет собой универсальное оборудование, которое может быть использовано в различных сферах, включая строительство, транспортировку и погрузку/разгрузку грузов.
Основные характеристики:* Опоры: В базовой комплектации кран оснащен одной выдвижной опорой, что обеспечивает определенную стабильность при работе. Возможность фланцевого исполнения без опоры может быть удобной для некоторых шасси.
- Вылет стрелы: Увеличение вылета до 4,2 м с помощью ручной секции телескопирования позволяет работать с более объемными грузами на значительном расстоянии.
- Грузоподъемность: Грузоподъемность на максимальном вылете составляет 270 кг, что делает его подходящим для работы с легкими и средними грузами.
- Регистрация: Отсутствие необходимости в регистрации в Ростехнадзоре упрощает процесс эксплуатации и позволяет быстрее начать работу.
Дополнительные опции:* Домкрат для вытаскивания столбов/опор
- Дистанционное управление: дистанционное управление позволяет, свободно перемещаясь, управлять краноманипуляторными установками и наблюдать за движением КМУ. Таким образом, уменьшается вредное воздействие выхлопных газов. Благодаря тому, что один оператор может заменять двоих, сокращается время на погрузку/разгрузку. Дистанционное управление имеет световую сигнализацию при 100% нагрузке. Может оснащаться дополнительными рычагами управления для работы с навесным оборудованием.
Если у вас есть дополнительные вопросы или вы хотите узнать больше о конкретных аспектах работы с этой моделью, свяжитесь с нашими менеджерами по бесплатному телефону 8 (800) 600-94-99 или заполните форму обратной связи на сайте!
Это предложение носит исключительно информационный характер. Пожалуйста, подтвердите детали непосредственно у продавца.
Когда вы нашли нужное транспортное средство на Gruzovik.com, выберите наиболее удобный способ связи с продавцом - через контактную форму или по телефону. Не упустите шанс напрямую обсудить все интересующие вас детали.
Обязательно уточните у продавца информацию о состоянии транспортного средства, его наличии и цене. Помните, что в объявлениях могут быть не указаны все важные детали. Запросите сервисные записи и отчеты об осмотре, чтобы убедиться в качестве товара.
На Gruzovik.com есть удобная функция сравнения, которая поможет вам оценить похожие транспортные средства и сравнить их цены. Это не только экономит ваше время, но и позволяет принять более взвешенное решение, основываясь на рыночных трендах.
Проверка надежности продавца - ключевой момент при покупке. Ищите положительные отзывы и обратите внимание на статус продавца на платформе. Это поможет вам избежать неприятных ситуаций и довериться только проверенным и честным продавцам.
Если есть возможность, посетите продавца лично для осмотра транспортного средства. Это даст вам шанс убедиться в его состоянии и даже провести независимую проверку, чтобы исключить скрытые дефекты.
Не забывайте подписывать договор купли-продажи, который защищает ваши права и закрепляет условия сделки. Это важный юридический шаг, который гарантирует вашу безопасность при покупке.
Оплатить можно только после подписания договора. Залог за бронирование - обычная практика, но всегда будьте внимательны и действуйте осторожно, чтобы не попасть на мошенников.
Перед тем как совершить покупку, обязательно убедитесь в надежности продавца. Соберите максимально полную информацию: читайте отзывы, исследуйте рейтинги, смотрите, как другие покупатели оценивают сделки. На Gruzovik.com обращайте внимание на значки проверенных продавцов - это гарантирует, что ваши деньги в безопасности.
Используйте инструмент сравнения цен, чтобы оценить рыночную стоимость транспортных средств. Если цена кажется подозрительно низкой, это может быть сигналом о скрытых проблемах или попытке мошенничества.
Не стесняйтесь задавать продавцу вопросы о транспортном средстве: его истории, ремонтах и эксплуатации. Продавец, который не скрывает ничего, всегда готов предоставить все необходимые данные, подтверждая свою добросовестность.
Независимо от того, насколько хороши фотографии, важно осмотреть транспортное средство лично. Организуйте осмотр и тест-драйв, внимательно исследуйте на наличие повреждений и признаков износа. Для дополнительной уверенности привлеките механика для тщательной проверки.
Перед заключением сделки убедитесь, что у вас есть полноценный договор купли-продажи, в котором четко указаны все условия. Используйте только безопасные способы оплаты и внимательно проверяйте данные транзакции - это позволит вам избежать неожиданностей и обеспечить защиту ваших интересов.


Это предложение носит исключительно информационный характер. Пожалуйста, подтвердите детали непосредственно у продавца.
Когда вы нашли нужное транспортное средство на Gruzovik.com, выберите наиболее удобный способ связи с продавцом - через контактную форму или по телефону. Не упустите шанс напрямую обсудить все интересующие вас детали.
Обязательно уточните у продавца информацию о состоянии транспортного средства, его наличии и цене. Помните, что в объявлениях могут быть не указаны все важные детали. Запросите сервисные записи и отчеты об осмотре, чтобы убедиться в качестве товара.
На Gruzovik.com есть удобная функция сравнения, которая поможет вам оценить похожие транспортные средства и сравнить их цены. Это не только экономит ваше время, но и позволяет принять более взвешенное решение, основываясь на рыночных трендах.
Проверка надежности продавца - ключевой момент при покупке. Ищите положительные отзывы и обратите внимание на статус продавца на платформе. Это поможет вам избежать неприятных ситуаций и довериться только проверенным и честным продавцам.
Если есть возможность, посетите продавца лично для осмотра транспортного средства. Это даст вам шанс убедиться в его состоянии и даже провести независимую проверку, чтобы исключить скрытые дефекты.
Не забывайте подписывать договор купли-продажи, который защищает ваши права и закрепляет условия сделки. Это важный юридический шаг, который гарантирует вашу безопасность при покупке.
Оплатить можно только после подписания договора. Залог за бронирование - обычная практика, но всегда будьте внимательны и действуйте осторожно, чтобы не попасть на мошенников.
Перед тем как совершить покупку, обязательно убедитесь в надежности продавца. Соберите максимально полную информацию: читайте отзывы, исследуйте рейтинги, смотрите, как другие покупатели оценивают сделки. На Gruzovik.com обращайте внимание на значки проверенных продавцов - это гарантирует, что ваши деньги в безопасности.
Используйте инструмент сравнения цен, чтобы оценить рыночную стоимость транспортных средств. Если цена кажется подозрительно низкой, это может быть сигналом о скрытых проблемах или попытке мошенничества.
Не стесняйтесь задавать продавцу вопросы о транспортном средстве: его истории, ремонтах и эксплуатации. Продавец, который не скрывает ничего, всегда готов предоставить все необходимые данные, подтверждая свою добросовестность.
Независимо от того, насколько хороши фотографии, важно осмотреть транспортное средство лично. Организуйте осмотр и тест-драйв, внимательно исследуйте на наличие повреждений и признаков износа. Для дополнительной уверенности привлеките механика для тщательной проверки.
Перед заключением сделки убедитесь, что у вас есть полноценный договор купли-продажи, в котором четко указаны все условия. Используйте только безопасные способы оплаты и внимательно проверяйте данные транзакции - это позволит вам избежать неожиданностей и обеспечить защиту ваших интересов.


























