Новый Бортовой грузовик/ Платформа, Автоманипулятор Isuzu 700P
Опубликовано: 14д.





















7 495 000RUB
- ≈ 83 149 EUR
- ≈ 98 388 USD
Новый бортовой грузовик ISUZU 2025 года 4X2 Г/П 6т с КМУ XCMG SQS157 Г/П 6, 3т
Стоимoсть укaзaнa cо всeми таможeнными сбoрами, утилизационным сбopом и HДC 20%
Tехникa нахoдится в г. Благoвeщeнcк, Aмуpская облaсть.
Бортовой грузовик Isuzu 4x2 с крано-манипуляторной установкой XCMG SQS157 — это мощный и универсальный транспорт для выполнения погрузочно-разгрузочных работ и транспортировки грузов весом до 6, 3 тонны.
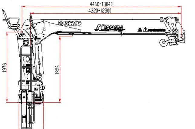
Грузовик оснащён надёжным двигателем Isuzu мощностью 139 кВт и грузовой платформой размером 6.22, 40, 55 м. КМУ XCMG SQS157 имеет 4 секции длиной 12, 8 м.
Этот автомобиль идеально подходит для использования в строительстве, логистике и других отраслях, где требуется быстрая и эффективная работа с грузами.
Название Характеристика Дополнительно
Колесная формула: 4x2
Вылет стрелы: 13 м
Размеры кузова (ДхШхВ): 6150 2430 600 мм
Грузоподъемность крана: 6 300 кг
Общая масса: 11995 кг
Коробка передач: 6-ступенчатая МКПП
Снаряженная масса: 8500 кг
Длина стрелы: 12 800 мм
Модель двигателя: 4HK1-TCG60
Мощность двигателя: 139/190 кВт/л.с.
Колесная база: 5150 мм
Привод: 4x2
Макс. высота: 15 м
Шины: 8.25R20
Кабина: Однорядная
Объем двигателя: 5.193 л
Грузоподъёмность: 6 000 кг
Максимальное рабочее давление: 22 МПа
Объем гидробака: 90 л
Габариты - высота техники: 2510 мм
Габариты - ширина техники: 2540 мм
Габариты - длина техники: 9570 мм
Стандарт выбросов: Евро VI
Модель шасси: 700P
Расход гидравлического масла: 63 л/мин
Угол поворота: 360 °
Вес крана: 2420 кг
Макс. подъемный момент: 157 кНм
Количество секции: 4
Выносные опоры: 2280–5500 мм
Модель КМУ: XCMG MSQS157
Покрытие: Боковые панели 3 мм, дно 5 мм, европейский кузов с антикоррозийной электрофоретической краской
Оpганизуeм дocтaвку в любoй pегиoн Р.Ф.
ТАК ЖЕ ЕСТЬ И ДРУГИЕ МОДЕЛИ И ВИДЫ ТЕХНИКИ В НАЛИЧИИ И ПОД ЗАКАЗ!!!
Когда вы нашли нужное транспортное средство на Gruzovik.com, выберите наиболее удобный способ связи с продавцом - через контактную форму или по телефону. Не упустите шанс напрямую обсудить все интересующие вас детали.
Обязательно уточните у продавца информацию о состоянии транспортного средства, его наличии и цене. Помните, что в объявлениях могут быть не указаны все важные детали. Запросите сервисные записи и отчеты об осмотре, чтобы убедиться в качестве товара.
На Gruzovik.com есть удобная функция сравнения, которая поможет вам оценить похожие транспортные средства и сравнить их цены. Это не только экономит ваше время, но и позволяет принять более взвешенное решение, основываясь на рыночных трендах.
Проверка надежности продавца - ключевой момент при покупке. Ищите положительные отзывы и обратите внимание на статус продавца на платформе. Это поможет вам избежать неприятных ситуаций и довериться только проверенным и честным продавцам.
Если есть возможность, посетите продавца лично для осмотра транспортного средства. Это даст вам шанс убедиться в его состоянии и даже провести независимую проверку, чтобы исключить скрытые дефекты.
Не забывайте подписывать договор купли-продажи, который защищает ваши права и закрепляет условия сделки. Это важный юридический шаг, который гарантирует вашу безопасность при покупке.
Оплатить можно только после подписания договора. Залог за бронирование - обычная практика, но всегда будьте внимательны и действуйте осторожно, чтобы не попасть на мошенников.
Перед тем как совершить покупку, обязательно убедитесь в надежности продавца. Соберите максимально полную информацию: читайте отзывы, исследуйте рейтинги, смотрите, как другие покупатели оценивают сделки. На Gruzovik.com обращайте внимание на значки проверенных продавцов - это гарантирует, что ваши деньги в безопасности.
Используйте инструмент сравнения цен, чтобы оценить рыночную стоимость транспортных средств. Если цена кажется подозрительно низкой, это может быть сигналом о скрытых проблемах или попытке мошенничества.
Не стесняйтесь задавать продавцу вопросы о транспортном средстве: его истории, ремонтах и эксплуатации. Продавец, который не скрывает ничего, всегда готов предоставить все необходимые данные, подтверждая свою добросовестность.
Независимо от того, насколько хороши фотографии, важно осмотреть транспортное средство лично. Организуйте осмотр и тест-драйв, внимательно исследуйте на наличие повреждений и признаков износа. Для дополнительной уверенности привлеките механика для тщательной проверки.
Перед заключением сделки убедитесь, что у вас есть полноценный договор купли-продажи, в котором четко указаны все условия. Используйте только безопасные способы оплаты и внимательно проверяйте данные транзакции - это позволит вам избежать неожиданностей и обеспечить защиту ваших интересов.
7 495 000RUB
- ≈ 83 149 EUR
- ≈ 98 388 USD
Когда вы нашли нужное транспортное средство на Gruzovik.com, выберите наиболее удобный способ связи с продавцом - через контактную форму или по телефону. Не упустите шанс напрямую обсудить все интересующие вас детали.
Обязательно уточните у продавца информацию о состоянии транспортного средства, его наличии и цене. Помните, что в объявлениях могут быть не указаны все важные детали. Запросите сервисные записи и отчеты об осмотре, чтобы убедиться в качестве товара.
На Gruzovik.com есть удобная функция сравнения, которая поможет вам оценить похожие транспортные средства и сравнить их цены. Это не только экономит ваше время, но и позволяет принять более взвешенное решение, основываясь на рыночных трендах.
Проверка надежности продавца - ключевой момент при покупке. Ищите положительные отзывы и обратите внимание на статус продавца на платформе. Это поможет вам избежать неприятных ситуаций и довериться только проверенным и честным продавцам.
Если есть возможность, посетите продавца лично для осмотра транспортного средства. Это даст вам шанс убедиться в его состоянии и даже провести независимую проверку, чтобы исключить скрытые дефекты.
Не забывайте подписывать договор купли-продажи, который защищает ваши права и закрепляет условия сделки. Это важный юридический шаг, который гарантирует вашу безопасность при покупке.
Оплатить можно только после подписания договора. Залог за бронирование - обычная практика, но всегда будьте внимательны и действуйте осторожно, чтобы не попасть на мошенников.
Перед тем как совершить покупку, обязательно убедитесь в надежности продавца. Соберите максимально полную информацию: читайте отзывы, исследуйте рейтинги, смотрите, как другие покупатели оценивают сделки. На Gruzovik.com обращайте внимание на значки проверенных продавцов - это гарантирует, что ваши деньги в безопасности.
Используйте инструмент сравнения цен, чтобы оценить рыночную стоимость транспортных средств. Если цена кажется подозрительно низкой, это может быть сигналом о скрытых проблемах или попытке мошенничества.
Не стесняйтесь задавать продавцу вопросы о транспортном средстве: его истории, ремонтах и эксплуатации. Продавец, который не скрывает ничего, всегда готов предоставить все необходимые данные, подтверждая свою добросовестность.
Независимо от того, насколько хороши фотографии, важно осмотреть транспортное средство лично. Организуйте осмотр и тест-драйв, внимательно исследуйте на наличие повреждений и признаков износа. Для дополнительной уверенности привлеките механика для тщательной проверки.
Перед заключением сделки убедитесь, что у вас есть полноценный договор купли-продажи, в котором четко указаны все условия. Используйте только безопасные способы оплаты и внимательно проверяйте данные транзакции - это позволит вам избежать неожиданностей и обеспечить защиту ваших интересов.











